首页
产品中心
公安执法
应急消防
环卫车
新闻报道
案例展示
行业动态
公司动态
服务支持
售后服务承诺
服务介绍
服务网点
维修保养
应急措施
产品环保信息公开
其他信息公开
资质与认证
资质
ISO体系证书
关于我们
企业介绍
加入我们
联系我们
首页
关于我们
企业介绍
联系我们
加入我们
新闻报道
案例展示
行业动态
公司动态
产品中心
公安执法
应急消防
环卫车
服务支持
产品环保信息公开
维修保养
其他信息公开
服务介绍
服务网点
售后服务承诺
应急措施
资质与认证
资质
ISO体系证书
在线留言
环卫装备热线
0374-6108256
消防警用车热线
18003998389
您的位置:
首页
>>
产品中心
>>
公安执法
>>
方舱系列
>>
多功能方舱
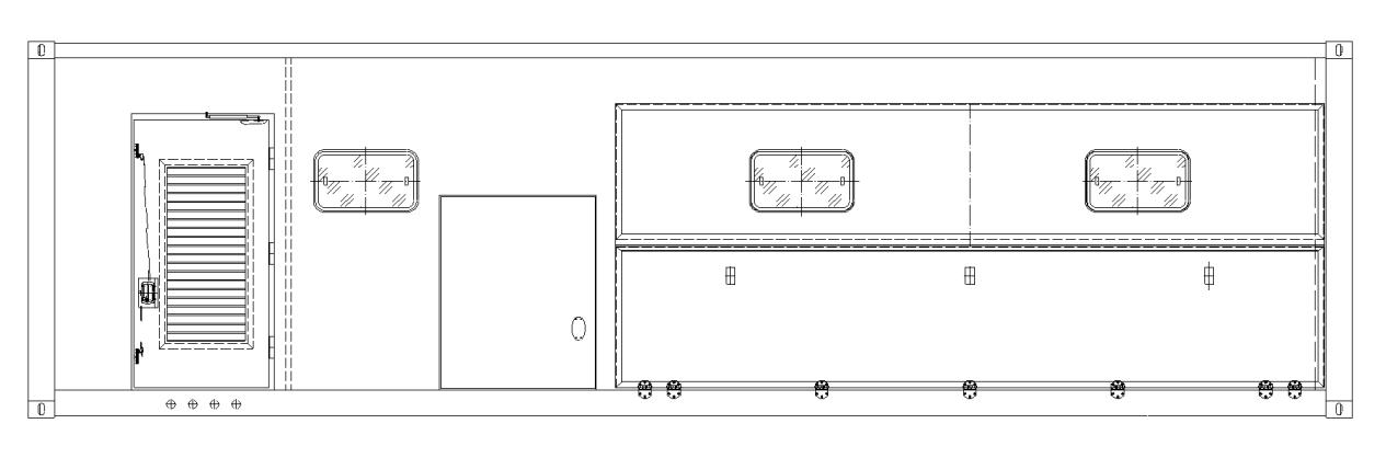
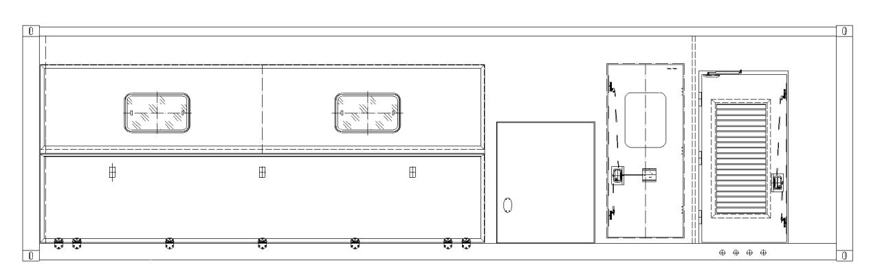
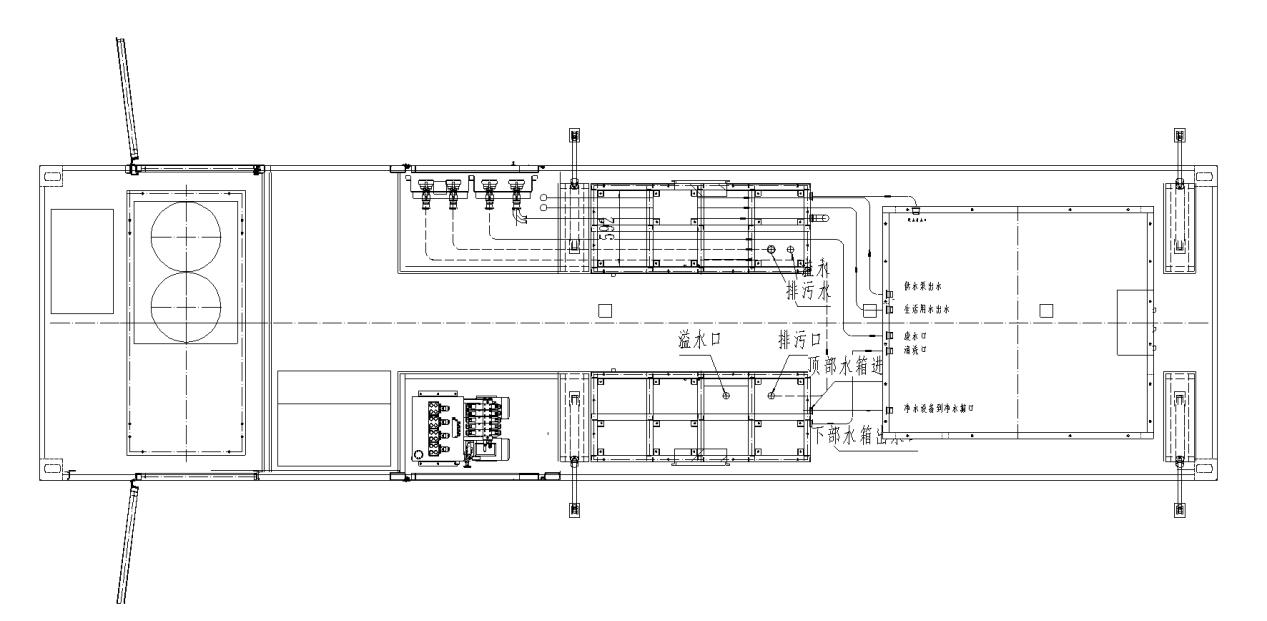
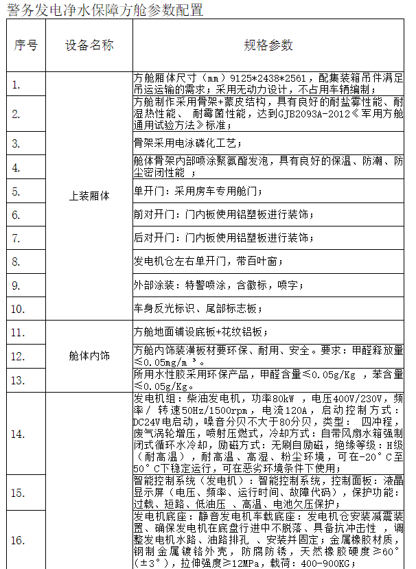
警务发电净水保障方舱
免费获取报价
详情请咨询
18003998389
产品展示
产品描述
配置参数
产品描述
配置参数